
La Torre dei Conti è tornata al centro dell'attenzione dopo che l'edificio è crollato parzialmente durante alcuni lavori di restauro e di consolidamento statico, causando la morte di un operaio di 66 anni, Octay Stroici. Le cause dell'incidente, avvenuto il 3 novembre con un primo crollo attorno alle 11:20 e un secondo alle 12:50, non sono ancora chiare: l'intervento di riqualificazione, del valore di 6,9 milioni di euro e finanziato dai fondi del PNRR, puntava al recupero di questo storico edificio, che dal 2006 era in stato di abbandono.
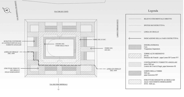
Ma qual è la storia della Torre dei Conti? Il maestoso edificio sarebbe stato eretto già nel IX secolo, ma nel 1203 fu sicuramente fatto ampliare da Papa Innocenzo III per la sua famiglia, i Conti di Segni: si tratta di una monumentale struttura in muratura, sostanzialmente realizzata con il travertino proveniente dai Fori Imperiali, situati lì vicino. Nel corso dei secoli, tuttavia, la Torre dei Conti ha subito diversi interventi di ristrutturazione – a seguito di tre terremoti, nel 1348, del 1630 e del 1644 – e di ampliamento.
Che cos'è la Torre dei Conti crollata a Roma: la storia dell'edificio
La Torre dei Conti di Roma, situata in largo Corrado Ricci alla confluenza tra via Cavour e via dei Fori Imperiali, è un tipico esempio delle case-torri della Roma medievale, dimore e fortezze delle famiglie più ricche dell'epoca.
Secondo le diverse ricostruzioni storiche, la Torre dei Conti sarebbe stata costruita già nel IX secolo sopra i resti del Tempio della Pace, voluto dall’imperatore Vespasiano. I recenti studi archeologici hanno permesso di ricostruire in dettaglio le fasi costruttive della Torre dei Conti, rivelando l’esistenza di due fasi principali: una prima fase romana, legata al Tempio della Pace, e una seconda fase medievale, che coincide con la costruzione della torre vera e propria sotto il papato di Innocenzo III, che nel 1203 fece ampliare la Torre in onore della sua famiglia, i Conti di Segni.

A quel punto, l'edificio fu rivestito con lastre di travertino provenienti dai Fori Imperiali, poi asportate nel tardo Cinquecento in occasione della costruzione di Porta Pia: nel Medioevo, infatti, era una pratica diffusa quella di riutilizzare i materiali delle strutture antiche, sia in un'ottica di continuità tra il passato e il presente, sia per una carenza di materiali da costruzione.
Insomma, con l'ampliamento del 1203, la Torre serviva non solo per rappresentare il potere ecclesiastico, tutelando le processioni del Papa da San Pietro alla Basilica di San Giovanni in Laterano, ma anche per dimostrare la potenza della famiglia dei Segni attraverso l'architettura. In tal senso, la Torre dei Conti rappresentava una sorta di “fortezza urbana”, che non solo proteggeva la famiglia, ma segnava anche il loro dominio sulla città.

La struttura, quindi, aveva una forte componente simbolica, legata all'unità e alla coesione della famiglia: nella Roma medievale, queste torri erano spesso proprietà condivisa tra i membri della famiglia, il che significava che nessuno poteva prenderne il controllo esclusivo, un sistema che favoriva l'unità della famiglia, simbolicamente rappresentata dalla condivisione della torre.
Com'è cambiata la Torre dei Conti nei secoli: i crolli e gli interventi strutturali
Nel corso dei secoli, la zona intorno alla Torre dei Conti subì varie trasformazioni, in concomitanza con i terremoti del 1348, del 1630 e del 1644: in questi casi, i danni furono tali da ridurre l'altezza della torre, che in origine doveva superare i 50-60 metri (a differenza dei 29 metri attuali).
In realtà, prima dei due grandi terremoti del 1600, l'architetto Carlo Lambardi aveva già progettato una serie di lavori di ristrutturazione: tra il 1606 e il 1613, infatti, l'isolato in cui sorgeva la torre fu ripensato urbanisticamente, con la creazione di nuove strade e di nuovi edifici che sostituirono alcune delle strutture che già esistevano allora.

Dal punto di vista strutturale, invece, gli interventi di restauro più importanti risalgono alla fine del XVII secolo quando, sotto il pontificato di Alessandro VIII, furono costruiti due robusti contrafforti di rinforzo tuttora esistenti, ossia degli elementi verticali alti circa 20 metri in muratura massiccia, con l'obiettivo di sostenere la struttura e darle stabilità.
Nel 1883 e nel 1933, infine, molti degli edifici attorno alla struttura furono demoliti: a quel punto, la Torre dei Conti passò da fortificazione isolata a un elemento integrato con il resto dell'area urbana, per poi essere adibita a sede di alcuni uffici pubblici fino al 2006 e abbandonata per i successivi 19 anni.